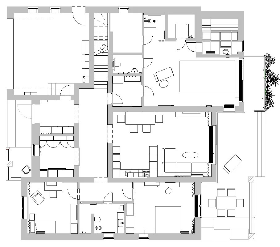
ПЛАНИРОВКА ПРОЕКТА:
Новый интерьер — новая жизнь! Многие именно с таким девизом ко мне и приходит. Ведь то, что нас окружает, бесспорно оказывает на нас влияние.
Но долгое время я не задумывалась, что для всех нас эта степень новизны очень разная и сильно зависит от личного опыта, и на самом деле не все хочется менять, и есть вещи/состояния/привычки, которые важно сохранить.
Этот проект был для меня очень ярким примером того, как не просто бывает примерять на себя новое и менять привычные устои.
Конечно это сильно зависит от характера человека и ситуаций, но в любом случае я к этому отношусь очень уважительно и с пониманием.
Ведь даже если предложенное решение супер-удобное/практичное/современное/технологичное … но не близко (не привычно, не понятно …) вам, и вы не готовы это новое принять, то нет никакого смысла соглашаться, следуя лишь современному течению — это может привести только к раздражению и дискомфорту.
Конкретно в этой кухне-гостиной (42,5 м²) мы долго и кропотливо обсуждали каждый шаг, начиная с расстановки мебели, анализируя образ жизни семьи.
Зону гостиной было важно расположить в части со вторым светом и с возможностью удобного просмотра телевизора и созерцания лесных видов из окна. В летнее теплое время окна раздвигаются и частично гостиная объединяется с террасой. Были еще мысли о камине, но в ходе примерок его в проект и оценке всех +/- решили отказаться от этой затеи.
Дальше кухня и столовая. С ними оказалось сложнее. Мне, конечно, очень хотелось сделать обеденный стол центральной точкой — символом душевных чаепитий и семейных ужинов. Но это требовало — либо вытянуть кухню по длинной стене, либо разделить её на две зоны у разных стен (оба варианта показались хозяевам не очень подходящими).
Рабочую часть кухни было важно изолировать от гостиной. Также необходимо было предусмотреть две рабочие зоны для одновременного приготовления блюд. В результате место для стола осталось только у стены — такое решение оказалось привычным и удобным для заказчиков, хотя меня немного смущало. Именно поэтому мы не стали рассматривать акцентные свисающие люстры, а расположили декоративные настенные светильники, которые с одной стороны зонируют обеденную зону, а с другой стороны нет жесткой привязки, и когда стол будет переезжать в зону гостиной на семейные торжества, то интерьер будет по-прежнему классно выглядеть.
Светильники расположены с определенным ритмом, который соотносится с раскладкой сетки на потолке, и эти же светильники с такими же декоративными деревянными палочками мы расположили в зоне второго света, чтобы визуально объединить пространство и добавить мягкого света в гостиной. А основным освещением здесь будут служить прозрачные свисающие шары — визуально легкие, не загораживающие вид из окон. Стеклянное ограждение на балкончике было предложено по той же причине.
Торец перекрытия декорирован фрезерованными панелями терракотового цвета, а напротив над окном его поддерживает объемный ритмичный фриз, за которым прячется шторный карниз. Еще одним визуальным пересечением в интерьере являются плитка на кухонном фартуке и объемный фасад тв-тумбы.
Вся палитра интерьера светлая спокойная, а акцентные цвета взяты из природного окружения — зелень хвои и красно-рыжая сосновая кора (дом расположен в окружении соснового леса). С цветом в этом помещении было работать не сложно, потому что к моменту отрисовки гостиной мы отработали «идеальные оттенки» на других помещения дома. А вот появившиеся здесь рельефы в отделках — это та самая «примерка на себя», которая не была принята в первых помещениях, как что-то чуждое, но оказалась по вкусу спустя некоторое время погружения в дизайн.
Ведь за время проектирования у заказчиков очень поднимается уровень насмотренности и на многие вещи к концу проекта взгляд меняется. Таким образом в новую жизнь заказчиков попадает контролированный уровень новизны, чтобы все были счастливы!
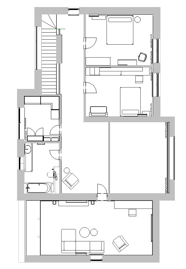
Спальни всегда хочется делать камерными, в плотных темных цветах, они по ощущению более уютные. В них комфортно проводить вечера и засыпать.
Но не многие решаются примерить на себя «темный» интерьер. Есть ложные опасения, что пространство уменьшится, что будет казаться мало света, что будет не камерно, а мрачно.
В этой спальне тоже темные цвета не рассматривались, но камерности удалось добиться:
— песочный цвет стен перетек на потолок;
— граница стен и потолка размыта радиусным карнизом;
— освещение скрытое с возможностью регулировки яркости.
Для уюта — светлое натуральное дерево. А чтобы не было визуальной духоты, я всегда сохраняю баланс теплых и холодных оттенков. В этом интерьере обилие теплого песочного оттенка уравновешивается свежим небесно-голубым. Шкаф и стена намерено выполнены в одном оттенке, чтобы объединить плоскости.
Будуарную зону расположили в нише. Украшением здесь выступает чудесный стул от @overgaard_dyrman. И ему в поддержку нами было разработано настенное зеркало.
В спальне большие окна с чудесным видом на лес, и поэтому здесь нет привычных тюлей, здесь не от кого прятаться и нечего прятать. Но совсем без оконного текстиля не обойтись.
Во первых, в вечернее время, когда на улице темно, а в комнате горит свет, окна в интерьере будут зеркалить, а это не всегда комфортно.
А во вторых, текстиль необходим для акустики, чтобы не ощущалось эхо. Поглощающих звук отделок в этой спальне не много (даже кровать выполнена в дереве), поэтому шторы обязательно нужны плотные, тяжелые.
Как видите, при разработке интерьеров учитываются многие
факторы. Все ради эстетического и физического комфорта!
Эта СПА-зона в частном доме создавалась для бодрых утренних пробуждений и расслабляющих восстанавливающих вечеров.
По утрам — заплыв под пение птиц. Бассейн, конечно, не 25 метров, но у нас предусмотрен противоток, поэтому тренировки возможны. А вечером — баня, хаммам, виды и запахи леса.
Дизайн СПА построен на основе палитры греческих островов: лазурный, белый, песочный. Все отделки лаконичны, практичны и подчеркивают архитектуру пространства.
Видимая часть вентиляции — тонкие щелевые решетки в потолке и стене. Никаких запотевших окон и ручейков по стенам, и всегда свежий воздух.
Отопление решено с помощью внутрипольных конвекторов под окнами и красивого трубчатого радиатора на стене.
Когда мы начали делать эту ванную комнату, у нас уже сформировалась палитра интерьера всего дома. Нейтральный светлый фон, рыжий в поддержку оконным рамам и контрастный ему зеленый.
Поэтому здесь появилась медная раковина, тумба с изумрудными
фасадами, и объединяющий элемент — декоративная рама из окисленной меди.
Стены нейтральные по цвету, но в зоне душевой присутствует рельеф, который мы усиливаем с помощью подсветки. Перегородку душевой на контрасте сделала черной. На ее фоне отлично смотрится белая керамика. По планировке «умывальник» смещен относительно центра стены, и чтобы это уравновесить мне необходимо было зонирование.
Так как эта часть ванной комнаты уже достаточно активная и по цвету и по фактурам, то я решила использовать ту же фоновую плитку, но нарезать ее на узкие полосы.
Напольная плитка появилась здесь почти в самом конце, хотя может показаться, что с нее все и начиналось, на сколько она органично вписывается и собирает все вокруг.
На самом деле отделки действительно собирались от цветного
пола, вот только совсем другого рисунка
и цвета. Частенько у меня так случается, что отправная точка не доходит до
финала. И тут главное всегда здраво оценивать со стороны и не цепляться за то,
что уже вытеснено.
Очень люблю эту комнату бабушки!
Необычное изголовье, стены с ритмичным фризом и обои с элегантной полоской, карниз, объединяющий потолок и стены, разноплановое освещение…
Интерьер прорабатывался внимательно и кропотливо, но с легкостью и в удовольствие.
А потом начали прилетать правки. И это было связано больше не с дизайном, а с изменениями назначения помещения.
Изначально дети хотели, чтобы их пожилая мама переехала к ним и планировали эту комнату специально для неё, но маме эта идея не приглянулась — ей важно как можно дольше сохранять самостоятельность и оставаться хозяйкой на своей территории.
Поэтому постепенно интерьер начал трансформироваться и упрощаться и превратился больше в гостевую, в которую возможно когда-то согласится переехать мама.
Спальня старшего сына.
Старший сын учится в другом городе и приезжает только на каникулы. В связи с этим требования к интерьеру были следующие:
— минимально необходимый набор мебели;
— нейтральная обстановка;
— практичность;
— разумный бюджет на реализацию.
Здесь есть и хранение, и рабочая/будуарная зона, и можно уютно устроиться в кресле с чашечкой чая и увлекательной книгой.
Несмотря на спокойную палитру, цветовые акценты все же присутствуют: рыжий стул в поддержку оконным рамам и комплементарный синий в шторах.
С цветом нас попридержали, поэтому наш творческий порыв переключился на свет. Подвесные прикроватные светильники, которые поворачиваются во все стороны и тем самым меняют свою геометрию и свечение. С другой стороны от кровати — настольный светильник, поддерживающий дизайн подвесных плафонов.
Намеренно делали асимметричную композицию, чтобы интерьер выглядел чуточку непредсказуемым. Торшер для уютных вечерних посиделок в кресле. И диммируемая подсветка за изголовьем для создания более интимной обстановки.
Основное освещение было возложено на два встроенных гипсовых кольца от @stellanova.pro. Они минималистичны, не загромождают, и огромный плюс — что не видно рассеиватели: красятся в цвет потолка и в выключенном состоянии выглядят нишами.
Но, к сожалению, эти чудо-светящиеся-ниши пока не так сильно очаровали заказчиков, как меня, и мы сейчас рассматриваем люстру как более простое и быстро монтируемое решение.
Ах, ну и мягкое изголовье кровати тоже не выдержало критику практичности и уступило место благородному натуральному дереву. Но здесь я совсем не против — всё натуральное!
И мне «здесь» очень приятно и комфортно, даже несмотря на то, что я обожаю делать поярче и посложнее.
Кабинет.
Но это название условное, потому что здесь никто не собирается работать по 8 часов в сутки. Мы даже между собой в команде и в обсуждении с заказчиком всегда называли это помещение не кабинетом, а мансардой.
Здесь хоть и располагается достаточно просторная рабочая зона, но все-таки эта комната больше для того, чтобы остаться наедине со своими мыслями, послушать музыку, посмотреть хороший фильм или мировые новости.
Этот кабинет не про демонстрацию своих регалий и заслуг, не про «удивить гостей», здесь все про личный комфорт хозяина. Хотелось уюта и камерности. Мы этого добивались приглушенными плотными цветами, обилием дерева как в мебели так и в отделках, и с помощью натуральных тканей (в том числе и на стене). Ну и конечно же зонированным освещением.
Что касаемо планировки, то здесь не сильно то разгуляешься… На первый взгляд помещение кажется просторным (мы над этим хорошо поработали), но на самом деле полезной площади здесь вдвое меньше. Полезной площадью на мансарде называется то место, где можно стоять в полный рост.
Именно поэтому мы могли располагать основные зоны только в центре. И если вы заметили картину у окна, то знайте, что это очень функциональная вещь — кондиционер, который будет здесь красоваться хотя бы только потому, что другие модели сюда ну никак не вписывались.
В общем мы как обычно сначала решили все технические и эргономические вопросы, потом завернули все в приятную палитру и тактильные материалы, и на выходе получили уютную мансарду-кабинет.





































































