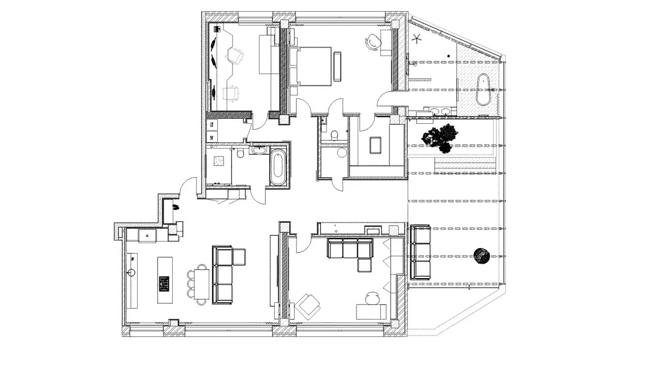
ПЛАНИРОВКА ПРОЕКТА:
Квартира для молодого IT-специалиста площадью 250 м² на 21 этаже.
Исходный запрос был четким: современный минималистичный интерьер в темной гамме, максимально практичный и наполненный технологичными решениями. Мы блестяще воплотили эту идею, добавив для тепла и тактильного комфорта натуральное дерево. Оно смягчило строгий темно-серый цвет, сделав пространство не только эффектным, но и по-настоящему уютным.
Лишь два помещения выбились из общей концепции: терраса, где светлые тона были выбраны из практических соображений для защиты от перегрева, и гостевая комната, которая изначально задумывалась как более светлое пространство для тех, кто не привык к темной эстетике.
Просторная кухня-гостиная площадью 55 м² включает в себя прихожую и коридор. Задача стояла непростая: грамотно зонировать пространство, разместив кухонный остров, обеденную группу и диванную зону, которой оставалось не так много места.
Чтобы зрительно увеличить диванную зону, мы использовали деревянные панели, которые «перетекают» с пола на стену. Их шестигранная форма — это не просто декор, а функциональные акустические панели, которые гасят звуковую вибрацию от огромных окон.
Мы хотели не акцентировать кухню, а сделать ее частью архитектуры. Вся функциональная начинка спрятана в нижних модулях, а гарнитур был обрамлен деревянным порталом и дополнен длинным настенным шкафом. Для сохранения чистоты линий мы отказались от купольной вытяжки в пользу встраиваемой в варочную панель.
По желанию заказчика,
шкаф управления системой «умный дом» стал арт-объектом — он размещен за
стильными стеклянными дверцами и неизменно удивляет гостей.
Рядом с гостиной расположена гостевая ванная комната, отделанная микроцементом. Тумба под раковиной имеет интересное решение, скрывает лотки для кошек. Доступ к ним организован через стену с обратной стороны, что позволяет держать дверь в санузел закрытой, предоставляя питомцам постоянный доступ. Изначально на террасе планировался зимний сад, но в процессе реализации проект эволюционировал. Теперь это многофункциональная зона с тренажерным залом. Здесь же органично вписался игровой комплекс для кошки. Для комфорта в солнечные дни предусмотрены электроприводные ролл-шторы.
Кабинет. Это самая темная комната в квартире — даже потолок здесь выкрашен в темный цвет по пожеланию заказчика, который любил работать по ночам. Ключевым элементом стала гигантская столешница во всю длину комнаты с индивидуальными вырезами для максимального комфорта.Помещение зонировано для разных задач, предусмотрено множество систем хранения. Над рабочей зоной акустические шестигранники на стене не только обеспечивают звукопоглощение, но и создают технологичный, почти космический антураж. Для пола был выбран практичный кварцвинил, устойчивый к колесикам офисного кресла.
Любопытный факт: со временем заказчик переехал работать в светлую гостевую комнату, которая теперь выполняет роль основного кабинета. Этот проект был сложным техническим вызовом: необходимо было интегрировать систему вентиляции, увлажнения, умный дом и комплексную звукоизоляцию. И все это — при борьбе за каждый сантиметр высоты из-за невысоких потолков. Вентиляционная установка была вынесена в техническое помещение рядом с кабинетом (где также расположена прачечная), чтобы избежать шума в спальной зоне. Это решение также позволило оптимально развести вентканалы, сконцентрировав все пересечения в нежилой зоне и сэкономив высоту потолков в основных помещениях.
Главная спальня продолжает темную эстетику. Изголовье кровати с подсветкой задает ритм, а напротив расположено тонированное зеркало, которое удваивает потрясающий вид из окна. Здесь же есть компактная рабочая зона и собственная гардеробная с эффектной подсветкой в темном исполнении, которая идеально сочетается с преимущественно темным гардеробом хозяина.
Через красивый портал из спальни можно попасть в атмосферное пространство с отдельно стоящей ванной на подиуме. Виды из этой комнаты, пожалуй, самые впечатляющие во всей квартире.
Эта квартира — пример того, как можно объединить смелую эстетику, безупречную функциональность и сложные технические решения. Было очень интересно работать над нестандартными задачами и создавать по-настоящему эффектный и продуманный до мелочей интерьер для взыскательного владельца.


















































