О ПРОЕКТЕ:
Квартира для аренды площадью 69 м²
Местоположение: Казань
Фото: Роман Спиридонов
Стилист: Евгения Масгутова
ПУБЛИКАЦИИ:
1. Журнал Архидом. Интерьер с розовым фламинго
2. Журнал Hi home. Розовый фламинго
3. Журнал Интерьерный
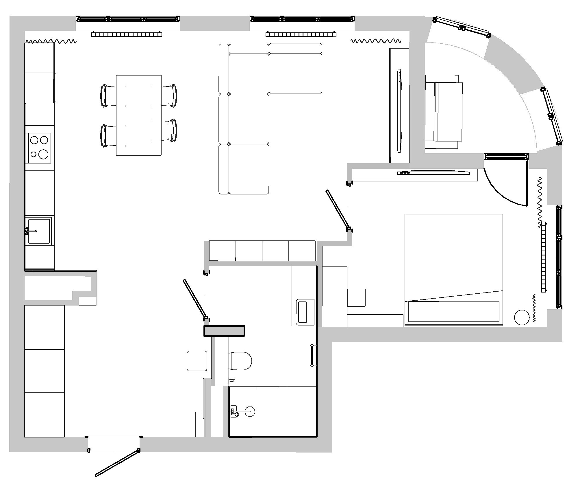
ПЛАНИРОВКА ПРОЕКТА:
Квартира проектировалась изначально под сдачу в аренду. Главные условия — квартира должна быть практичной, подходить для долгосрочной аренды, и быть индивидуальной. При это мы должны максимально минимизировать затраты на отделочные материалы, и уложится в кратчайшие сроки по реализации.
Основную площадь квартиры мы выделили для кухни-гостиной, и не стали экономить место для прихожей. Общая зона (прихожая и кухня-гостиная) получилась 44 м². Спальня компактная — 13 м², но с полноценной двухспальной кроватью. Сан узел довольно просторный — 5 м².
Заказчик хотел видеть серо-белую цветовую гамму с использованием дерева и комнатных растений. Но мы понимали, что использовать живые растения в квартире, которая будет сдаваться в аренду не самая хорошая идея, так как они не получат достаточного ухода. Использование искусственных растений в жилом пространстве противоречит нашим взглядам.
Мы понимали, что изначальное желание заказчика добавить в интерьер цветы — это его ассоциация на уют и естественное добавление цвета. И мы решили посмотреть на эту задачу под другим углом.
Мы выкрасили несколько стен зеленым травяным цветом, серый заменили на теплый шоколадный оттенок, а белый теплым кремовым.
Теперь подробнее о помещениях. Начнем с прихожей. Ее площадь 11 м².
В ней мы разместили большой встроенный шкаф, который является основным местом для хранения: 1 секция для верхней одежды и обуви, вторая для повседневной одежды, и отдельная секция — мини постирочный блок со стиральной и сушильной машиной.
Прихожая оснащена большим зеркалом от пола до потолка с небольшой консолью, что очень удобно так как там можно хранить ключи и прочие мелочи. Слева от зеркала расположена ниша с гостевыми крючками. Декоративно и функционально.
Чтобы обыграть существующую колонну и не зашивать впустую ценное пространство, решили установить стеллаж с подсветкой. На нем можно разместить декор или парфюм.
Из прихожей можно сразу попасть в санузел.
Здесь предусмотрели большую раковину со столешницей и вместительным навесным ящиком для хранения гигиенических принадлежностей. Не стали загромождать пространство навесными зеркальными шкафами, а использовали тонкие декоративные зеркала в виде парящих кругов. Все отделочные материалы перекликаются друг с другом и задают настроение природной эстетики. Размеры душевой кабины позволяют не ставить распашные двери, а обойтись душевой перегородкой. Над инсталляцией располагается дополнительное хранение и установлены счётчик. В туалете имеются два сценария освещения: основной, и приглушенный.
Несмотря на то, что квартира рассчитана на проживание 2 человек, кухню проектировали полноценную, с большой столешницей и посудомойкой шириной 60 см. Мы не стали загромождать верхними навесными модулями стену, все хранение расположили в нижней части кухни. Очень удобное решение, так как не приходится тянуться, чтобы убирать посуду. Единственный модуль, который мы повесили на стену это вытяжка и она является акцентным элементом. Завершили композицию тонкой линией в виде полки со встроенной функциональной подсветкой. В правой части кухни расположены колонны со встроенной техникой (СВЧ, духовой шкаф и встроенный холодильник).
Кухонный фартук в этом проекте — это не стандартная полоса у столешницы, а вся стена целиком, выложенная керамогранитом с активным декоративным рисунком.
Полноценный обеденный стол с возможностью раскладки умещает до 10-ти человек. Зонирован двумя подвесными светильниками, которые создают камерную уютную атмосферу в вечернее время.
В качестве акцента и души этого проекта выступает необычный герой — розовый фламинго. Он привнес дополнительный живой цвет и окончательно укрепил концепцию африканских мотивов. Панно фламинго выполнено вручную из мозаики специально для этого проекта.
Посреди комнаты расположился большой модульный диван, который визуально отделяет гостиную от кухни-столовой. В зоне ТВ установлен телевизор, за которым намеренно выкрасили стену в темный цвет — это позволило большому черному экрану мимикрировать в интерьере. Также в гостиной расположена еще одна зона хранения и витрина с подсветкой. За глухими фасадами предполагается хранить постельные принадлежности и одежду, а витрина для стеклянной посуды и декора.
Спальню целенаправленно сделали компактной 13 м², что бы основную площадь выделить под гостиную, но даже при таких размерах мы спроектировали комфортные проходы для перемещения в комнате. Здесь расположена большая двухместная кровать. В изголовье намеренно делали асимметричную композицию из разных систем хранения и светильников. В нише расположено большое зеркало с подсветкой и встроена консоль, которую можно использовать как рабочую или как будуарную зону.
Лоджия по проекту дома задумывалась как техническое помещение для размещения наружных блок кондиционеров (на фасад их устанавливать нельзя). Но мы пересмотрели первоначальное предназначение этого помещения и добавили дополнительную функцию виде небольшой лаундж зоны. И именно это второстепенное помещение повлияло на концепцию всего интерьера. Благодаря радиусной стене появились круги, овалы, дуги.
Мы довольны реализацией и получили очень высокую оценку от заказчика, а квартира ждет уже своих первых жильцов.


































