О ПРОЕКТЕ:
Студия йоги «Сестра Луна» площадью 104 м²
Местоположение: Тольятти
Фотограф: Роман Спиридонов
ДОСТИЖЕНИЯ ПРОЕКТА:
Номинирован на GOLDEN TREZZINI AWARDS
Номинация: Лучший реализованный проект интерьера общественного пространства
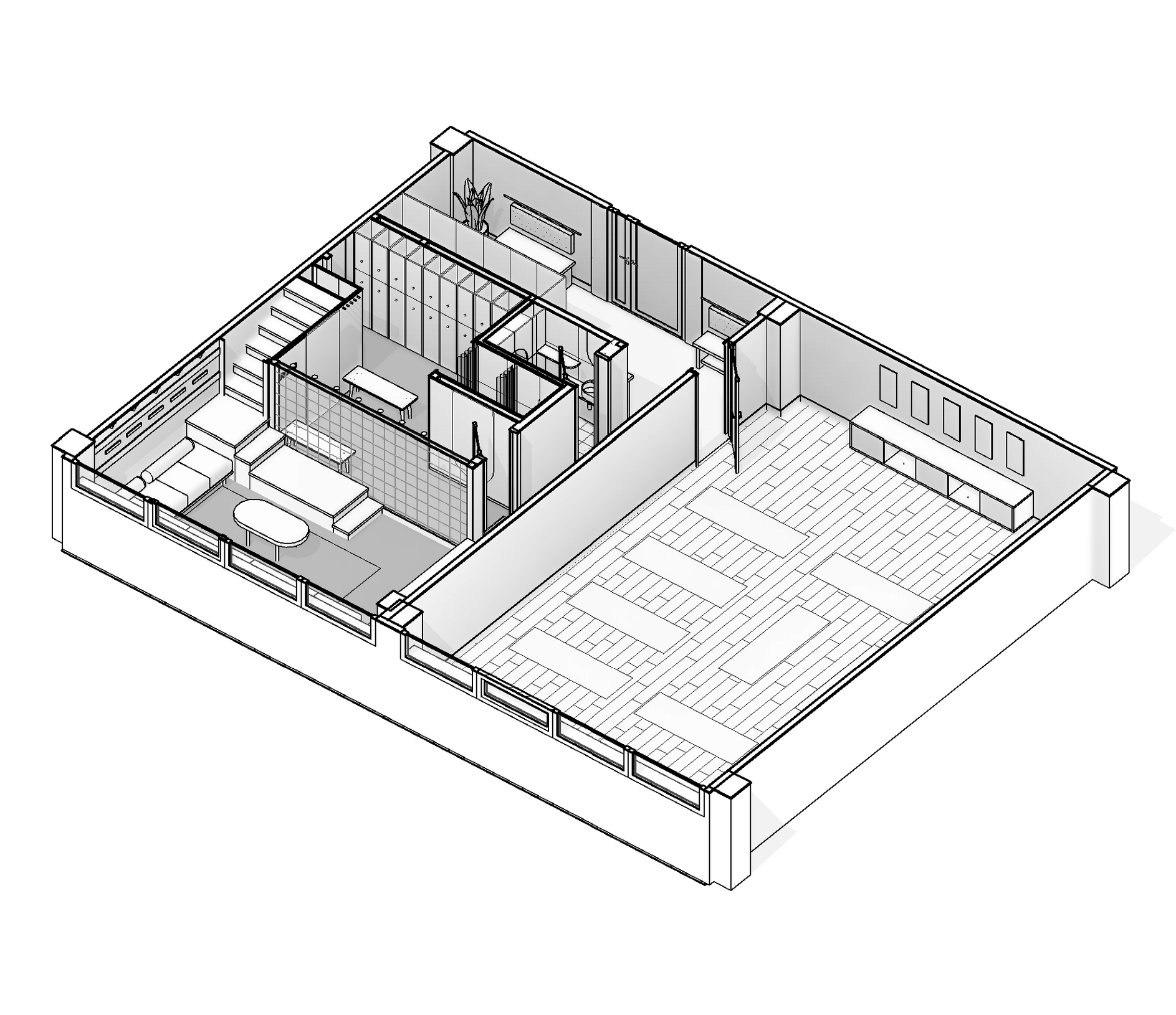
ПЛАНИРОВКА ПРОЕКТА:
Заказчикам хотелось здесь отразить атмосферу легкой балийской тематики, органично соседствующей с индустриальным городским пейзажем.
Помимо основного зала для занятий нужно было расположить
ресепшн, раздевалки, санузел и гостиную. Была так же идея создать небольшую
кухонную зону, где можно будет попить чай после практик.
Половину площади оставили под основной зал, а на второй части располагали все
остальные зоны. Чтобы оптимально использовать пространство, пришла идея создания
двух ярусов, благо у нас позволяет высота потолков — здесь в самой высокой
точке 4,6 метров.
При этом важно было оставить простор и высоту, поэтому мы создали островок, на котором уже и появился второй этаж, где расположилась небольшая кухонная зона и место для бесед за чашечкой чая после занятий.
Так же было важно, чтобы ограждение второго этажа было визуально легким, чтобы максимально пропускало свет в другие зоны. Остановились на тонких металлических ажурных конструкций. В проекте было запланировано много растений, и мы хотели, чтобы они со второго этажа спускались вниз на первый через эти прутья.
В гостиной расположилась мягкая зона и напротив нее лестница, которая используется в роли дополнительных посадочных мест. И здесь же есть зона магазина. Нам не хотелось делать стандартный стеллаж-витрину, и поэтому родилась идея встроенного объекта с плавными текучими линиями, с отделкой в технике мазанка. И форма, и фактура говорят о ручной работе — не идеальной, но «с душой».
В поддержку этнической темы на стене появились объемные орнаменты и это не просто абстрактные формы, а элементы со смыслом — с одной стороны это цветок, а с другой стороны это силуэты йогов, которые сидят в позе лотоса и стоят на голове.
На первом этаже островка мы расположили зону раздевалок с душевой и компактный санузел. Было очень важно сохранить ощущение простора даже в небольших помещениях, поэтому металлокаркас, который нам нужен был для создания второго этажа, мы оставили открытым, тем самым прилично сэкономив драгоценные сантиметры.
Раздевалка компактная, но кажется гораздо просторнее своих размеров — все благодаря стене из стеклоблоков, через которые проходит много дневного света.
Расположение островка по центру помещения — это не случайность, а продуманное решение. В первую очередь он отделяет прихожую от приватной гостиной. И при этом сохраняется естественный дневной свет во всем пространстве. К тому же, попадая в студию, с самого порога гости ощущают простор благодаря высокому потолку.
В главном зале было важно сохранить легкость, воздушность и исключить визуальный шум. Необходимо было предусмотреть зоны для хранения — часть вписали под окном, а с другой стороны расположили стеллаж. В закрытые части убирается оборудование, которое создает визуальный шум, а в открытых полках хранятся пледы и блоки в свободном доступе для гостей. Хранение ковриков сделали акцентом. Сами панели графичны, и являются декором даже без ковриков. Но и с ковриками эта стена выглядит гармонично.
Зеркала в зале предусмотрели на случай танцевальных занятий, но также их можно закрыть шторами в моменты, когда они могут быть отвлекающими.
Проект сочетает в себе функциональность и концептуальность, создавая гармоничное пространство для занятий йогой, где балийская легкость органично переплетается с индустриальными элементами городского дизайна. Особое внимание уделено сохранению простора и естественного освещения, что создает идеальную атмосферу для практик и отдыха.











































