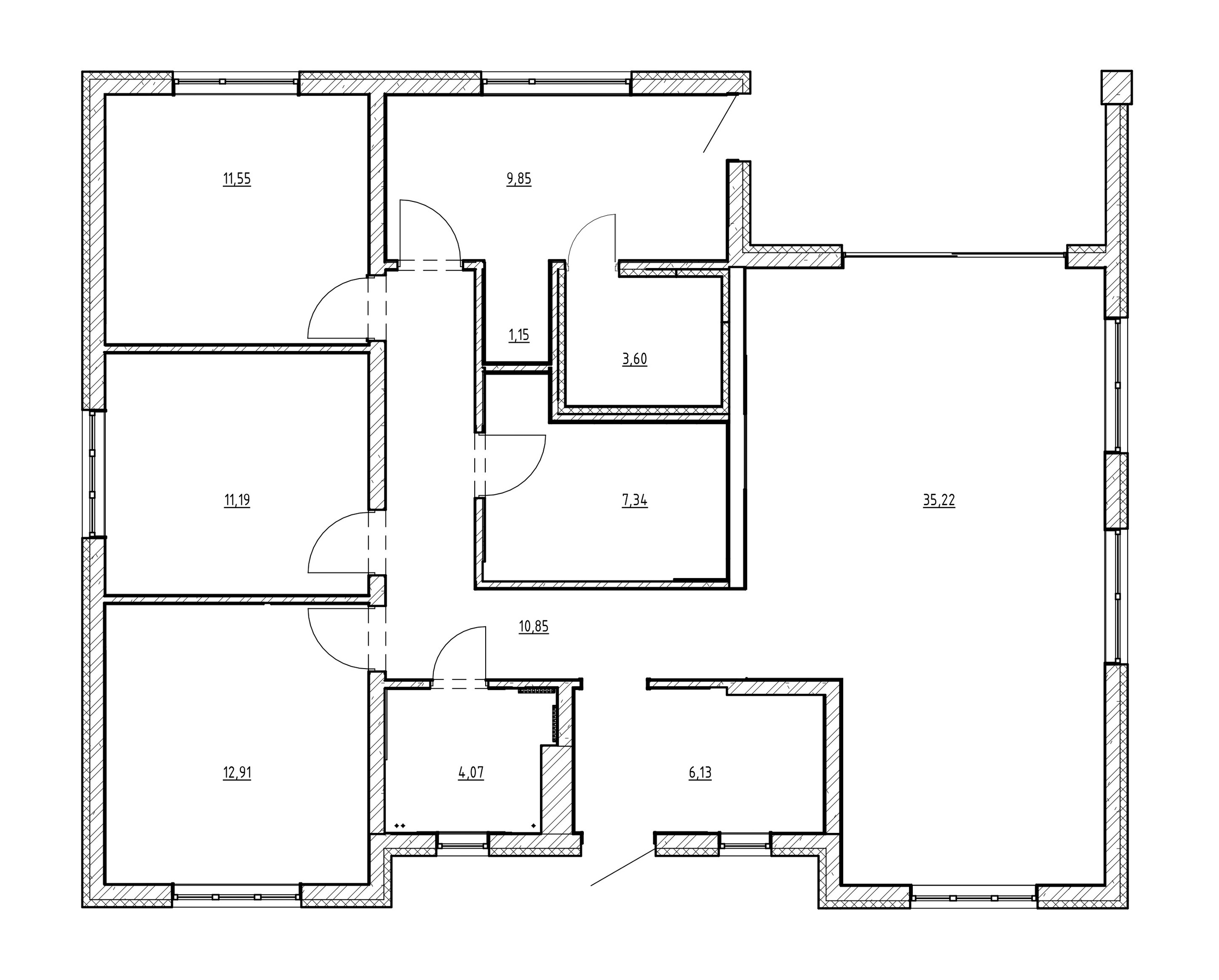
ПЛАНИРОВКА ПРОЕКТА:
«Я давно слежу за вашей студией, мне нравится ваш подход, и вы уже даже делали похожий дом!» — именно с этих слов очень милой женщины началось наше сотрудничество в 2023 году. И она была абсолютно права: незадолго до этого мы реализовали точно такой же дом, но с зеркальной планировкой для того же застройщика, только в другом коттеджном поселке. Перед нами стояла задача создать уютный дом площадью 117 м² в коттеджном поселке Флора, г. Тольятти.
Мы начали работу над проектом на этапе черновых работ, когда в доме еще не было даже окон. Это оказалось очень кстати, потому что наш опыт подтверждает: чем раньше дизайнер приступает к работе, тем меньше переделок возникает впоследствии. Исходная планировка в целом устраивала заказчицу, она просила не передвигать стены. Мы согласились и скорректировали только пару дверных проемов. Однако компоновку котельной мы настояли пересмотреть. Благодаря этому решению в доме появился полноценный гостевой санузел, что стало для нас маленькой гордостью.
Дом удобно спроектирован. Левая половина — приватная часть, правая сторона — общая парадная. Отдельно выделена зона отдыха с сауной и выходом на задний двор. Изюминкой дома стала просторная гостиная с высоким потолком и возможностью установки дровяного камина.
Что касается концепции интерьера, на этапе обсуждения мы определили достаточно конкретные рамки с заказчицей: максимально спокойный и светлый интерьер — практичный, без лишней декоративности, но уютный. Когда нет возможности активно работать с цветом и принтами, мы сосредотачиваемся на сочетании нюансных оттенков, добавляем фактуры и используем скрытые принты. Именно это делает интерьеры уютными, не надоедающими и актуальными на долгие годы. Мы использовали несколько текстур дерева и камня — все спокойные, но с читаемой текстурой, что и является скрытым принтом.
Кухня-гостиная — главное парадное помещение площадью 36 м² с высокими потолками и большими окнами. Нам очень хотелось подчеркнуть необычную форму потолков. Поэтому мы сохранили конструктив и выполнили отделку деревянной вагонкой, подчеркнув балку деревянной обшивкой другого цвета. Освещение сделали с помощью тонких встроенных светодиодных профилей, которые не бросаются в глаза при выключенном свете, а при включенном освещении дополнительно подчеркивают конструктив потолка.
Учитывая, что здесь необходимо расположить три зоны — кухня, столовая и гостиная, — места не так уж и много. Поэтому мы визуально объединили эти три зоны, аккуратно зонируя и создавая перетекание одной части в другую. С одной стороны, кухня отделяется от гостиной полубарной зоной и подвесными светильниками, но с другой стороны, отделка стен собирает две зоны в единое пространство. Обеденная зона располагается между диваном и кухонной частью. Мы намеренно не стали подчеркивать ее расположение подвесными люстрами, потому что предполагается, что обеденная группа может переставляться к дивану в праздники и при большом количестве гостей.
Главной изюминкой гостиной является дровяной камин. Над этим местом на этапе проектирования мы немало думали, чтобы композиционно вписать его в пространство, так как дымоход расположен близко к углу. С одной стороны, кажется, что места много, но как только мы начинаем дробить на части, то ощущение просторного помещения теряется. Поэтому мы не просто делили на зоны, а объединяли в одну композицию и камин, и ТВ-зону. У нас есть тонкая длинная тумба, которая максимально вытягивает эту зону. И отделка плиткой с горизонтальным рисунком, которая перетекает в зону кухни, тем самым визуально расширяя границы гостиной.
В прихожей мы много внимания уделили практичности. На полу сделали керамогранит — максимально устойчивый к повреждениям материал, с практичным рисунком и легкими разводами. Формат плитки 120*60, но чтобы добавить разнообразие и ритм, мы плитку резали на полосы. Откосы входной двери облицевали акриловым камнем — современное минималистичное и очень практичное решение. На стене мы сделали огромное зеркало и по бокам от него панели в натуральном шпоне. Рисунок панелей с диагональными полосами был навеян дизайном потолка гостиной, и эти диагонали нюансно проходят по интерьеру всего дома. В прихожей расположилась подвесная тумба для ключей и мелочей, а также пуф. Вся верхняя одежда, сумки, обувь хранится в гардеробной за раздвижной дверью.
Наша маленькая гордость — гостевой санузел, появившийся благодаря перекомпоновке котельной. Всю техническую часть удалось спрятать за раздвижными фасадами. Материалы и палитра соответствуют общей концепции. В качестве декоративного приема мы использовали ритмичную фрезеровку на распашных фасадах и контрастные вставки-профили на раздвижных. Широкие панели вдоль потолка — это декоративные элементы, за которыми прячется подсветка и газовая труба.
В приватной части дома располагаются три спальни.
— Хозяйская спальня (окна в сад): Мы использовали максимально светлые оттенки, однотонные обои в двух цветах, составной плинтус. В изголовье отразили диагональные линии, навеянные потолком гостиной, с скрытой светодиодной подсветкой по периметру. На противоположной стене расположился небольшой шкаф и комод. Чтобы композиционно уравновесить эту стену, дверь мы визуально сделали до потолка с помощью настенной панели. Основное освещение выполнено с помощью купольного линейного профиля — без видимого рассеивателя.
— Детская спальня: Здесь мы позволили себе чуть большей декоративности. Для стен подобрали панно, напечатанное под заказ в нужном оттенке, дополнили обоями под рогожку, соединив их тонким лаконичным молдингом. Изголовье кровати выдвинули чуть в сторону, чтобы оно оказалось фоном для прикроватной тумбочки. На комоде под телевизором — накладки на фасад плавной бионической формы, перекликающиеся с панно. Шкаф — сдержанный встроенный, но с акцентной яркой полосой между фасадами. Этот же сложный бордовый оттенок использован на канте кровати и в открытой части подвесного шкафа.
— Гостевая спальня: Здесь мы позволили себе немного темного цвета, чтобы вписать кровать и тумбы, переехавшие из другой квартиры. Чтобы они не выделялись на фоне небольшой стены, мы поместили их на темный фон. Кондиционер перекрасили под цвет стены. Стену в изголовье декорировали эффектом панелей с помощью встроенных микро-профилей и обоев, наклеенных в разном направлении. Здесь разместили вместительный встроенный шкаф и большой комод для хранения сезонных вещей хозяйки.
В ванной мы немного перенесли один из проемов. Изначальная ниша, предназначенная для стиральной машины, не позволяла удобно спрятать прачечную зону за фасадами — смещение проема решило проблему. В этом же шкафу предусмотрен доступ на крышу через люк. Возле раковины предусмотрены открытые полки для удобства, но расположены они так, что при входе в ванную ничего лишнего не видно — все скрыто фальш-фасадом. В нише предусмотрены розетки. Большое зеркало с подсветкой, вместительная тумба, большая встроенная ванна. Полки из керамогранита выполнены с уклоном и не доведены до стены, чтобы стекала вода — практичность в мелочах. Основное освещение — встроенные линейные купольные светильники; декоративное приглушенное — подсветка вдоль ванной и в потолочной нише.
Сауну мы декорировали солевым панно, комбинируя отделку деревом и керамогранитом. Раскладку вагонки сделали в двух направлениях, создав портал для полков. Керамогранит расположили за печью. Низ в сауне мы выполнили плинтусом из плитки, приподняв вагонку на его высоту, чтобы защитить дерево от влаги — решение сложное в реализации, но того стоит.
В комнате отдыха расположили чайную зону у окна. На окнах — плиссе и легкие портьеры. Стены выполнены влагостойкой декоративной штукатуркой. На полу — керамогранит с нестандартной выкладкой: часть плит нарезали на полосы, создав ритм плиточными швами.
В доме живет кот, и его влияние на интерьер мы учли при выборе текстиля: отдавали образцы тканей на «растерзание» коту, чтобы убедиться в их устойчивости.
Этот проект в поселке «Флора» — пример того, как работа на раннем этапе, внимание к пожеланиям заказчика и тщательная проработка деталей превращают даже «знакомый» план в индивидуальное, комфортное и продуманное пространство для жизни всей семьи, включая пушистых членов.

























































