О ПРОЕКТЕ:
Трехкомнатная квартира площадью 82 м²
Местоположение: Самара
Фотограф: Роман Спиридонов
ПУБЛИКАЦИИ:
Журнал INMYROOM. Трешка 82 м² с яркими акцентами для семейной пары в Самаре
БРЕНДЫ, ПРЕДСТАВЛЕННЫЕ В ПРОЕКТЕ:
Мебель:
— стол обеденный — UNIKA
— панели и фасады — Вудсток
— диван в гостиной — Skdesign
— детская кровать девочки — Divan.ru
— детская кровать мальчика — Calma
— кровать для взрослых — Идея
— столик приставной в спальне — La Forma
— стул — La Forma
— комод в прихожую — Logos
— пуф — Luna Jamni
Освещение: Maytoni, Ambrella, Arte Lamp, Crystal Lux
Электрика: Schneider AtlasDesign
Сантехника:
— душевая система — Ideal Rain ЕСО
— сантехника — Grohe
— ванная — Ravak
— полотенцесушитель — Terminus
— инсталляция — Geberit
— гигиенический душ — Bossini
Отделка и напольное покрытие: плитка: Rocersa, мозаика Jasba Fresh Vivid Violet-Mix, Exagres, Creto, Старопетровское
Молдинги: Европласт, Orac Decor
Двери: RADA DOORS
Краска: San Marco
Картины в интерьере: Мария Романова
ПЛАНИРОВКА ПРОЕКТА:
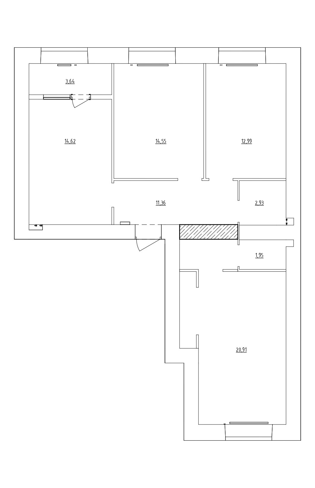
Перед нами стояла задача: создать комфортное и функциональное жилое пространство в трехкомнатной квартире площадью 82 м² для молодой семьи с двумя детьми разного пола. Заказчики мечтали о современном интерьере, наполненном уютом, но без излишней загроможденности.
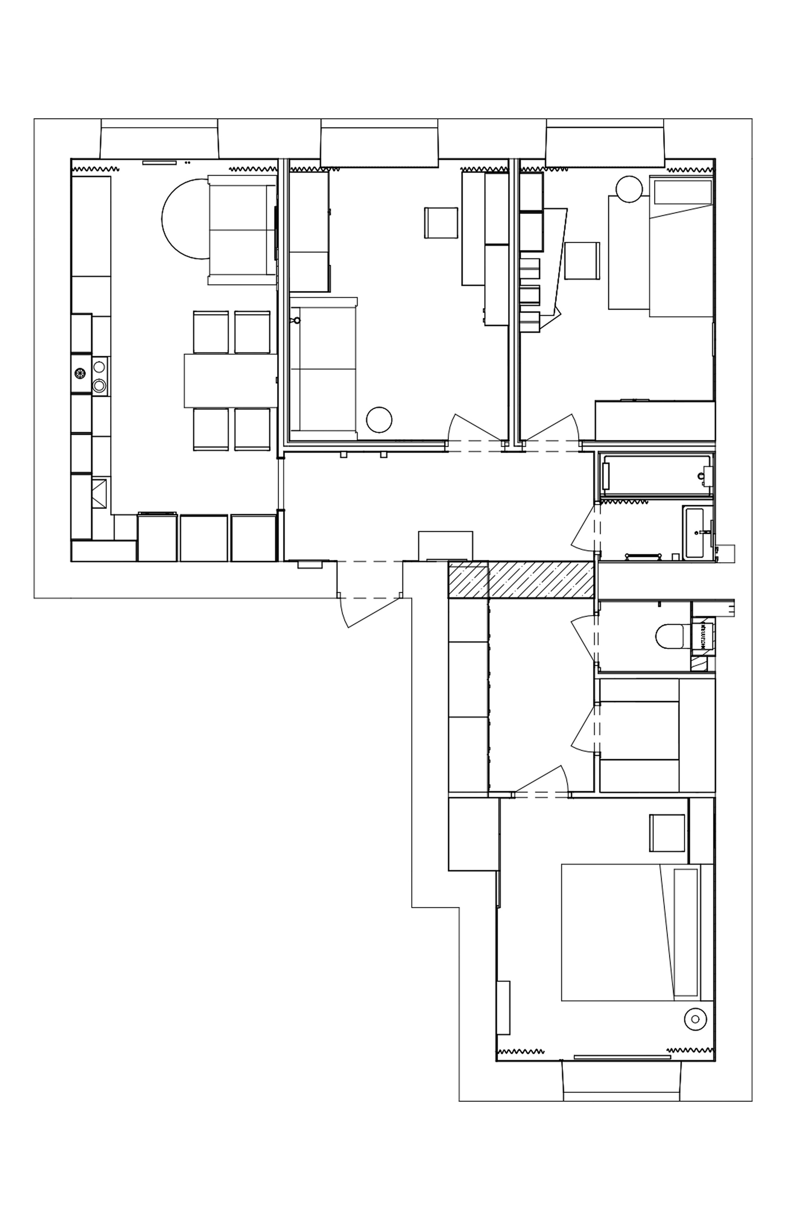
Первоначально мы предложили несколько вариантов планировки без демонтажа стен, но оптимальное решение требовало более кардинальных мер. В итоге, заказчики утвердили проект с демонтажем перегородки между кухней и лоджией. В этой зоне нужно было расположить и вместительную кухню, и гостиную зону, и столовую, и постирочный блок. Нам это удалось, помещение получилось гармоничным и очень функциональным.
Решение объединить кухню и лоджию не было простым. До сих пор многие семьи используют лоджии как кладовые, и отказ от этого привычного решения требовал компенсации. Поэтому мы предусмотрели два важных элемента: увеличенный шкаф в коридоре и отдельную гардеробную комнату. Это позволило сохранить порядок и избежать ощущения захламленности, компенсируя потерю дополнительного места для хранения на лоджии.
Что касается визуальной части, вся палитра в интерьере тонко переплетается между собой, мы используем одни и те же цвета, но в разных пропорциях в каждой комнате и поэтому интерьер становится и целостным, но в то же время с разным настроением в каждой комнате. Так синий цвет перетек из прихожей в санузел и ванную комнату.
Ванная комната хоть и небольшая, тут меньше трех квадратных метров, но нам это не помешало наполнить ее различными текстурами. Здесь пять видов плитки, но она так аккуратно замиксована, что дает многослойность и делает пространство более просторным.
Детские комнаты у нас с одинаковым стандартным набором, это рабочие, спальные места и система хранения, но по настроению они конечно же совсем разные. Детская сына разбеленного синего оттенка с добавлением теплой текстуры дуба, как и в других помещениях. Здесь мы позволили себе немного открытых полок в зоне кровати, чтобы любимые книжки и игрушки всегда были под рукой, и пару полок в рабочей зоне для хранения учебников и крупных моделей из конструктора.
В комнате дочери дополнительный цвет, конечно, розовый, и ей хотелось сделать розовым все вокруг, но мы сторговались на одной стене. Оттенок выбирали сложный, с персиковым отливом, чтобы он нравился не только в 7 лет, но и к 10 годам оставался актуальным. Здесь же на этой стене у нас тонкие контуры птиц, они не броские, но добавляют пространству глубины. Здесь мы использовали мой любимый прием для детских, это деление стен по горизонтали. Очень практичное решение, потому что чаще всего стены портятся в нижней части, и, чтобы их потом отремонтировать, можно будет перекрасить только низ стены, а не всю целиком. Разделением служит дубовая рейка, и такая же рейка у нас на экране радиатора.
Главную спальню мы немного уменьшили в пользу гардеробной, но здесь поместилось, помимо кровати и прикроватных столиков, встроенный шкаф, и, как может показаться, он не трехдверный, а двухдверный. Третий фальшфасад мы добавили, чтобы создать ощущения настенных панелей, к ним примыкают дубовые рейки, тем самым мы завязали вертикальный и горизонтальный ритм. В целом спальню просили сделать светлой и более нейтральной, поэтому мы здесь работали с фактурами и полутонами, а акценты привнесли декоративными элементами.
Было интересно работать над этим проектом, нам доверились и мы смогли реализовать для заказчиков более смелые и интересные идеи, чем они это изначально представляли. Произошел некий рост, и нас это очень радует и вдохновляет.





















































