О ПРОЕКТЕ:
Двухкомнатная квартира площадью 86 м²
Местоположение: Тольятти
Фото: Роман Спиридонов
Стилист: Евгения Масгутова
ПУБЛИКАЦИИ:
1. Платформа Design Mate. Эффектный интерьер квартиры для жизнерадостной женщины из Тольятти — проект Светланы Сапрыкиной
2. Журнал «Интерьерный». Светлана Сапрыкина — основатель и руководитель собственной студии дизайна интерьера
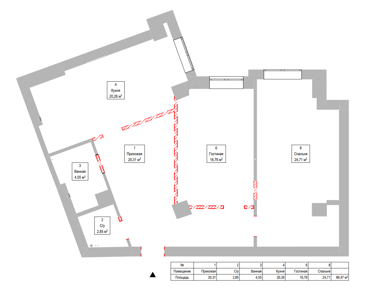
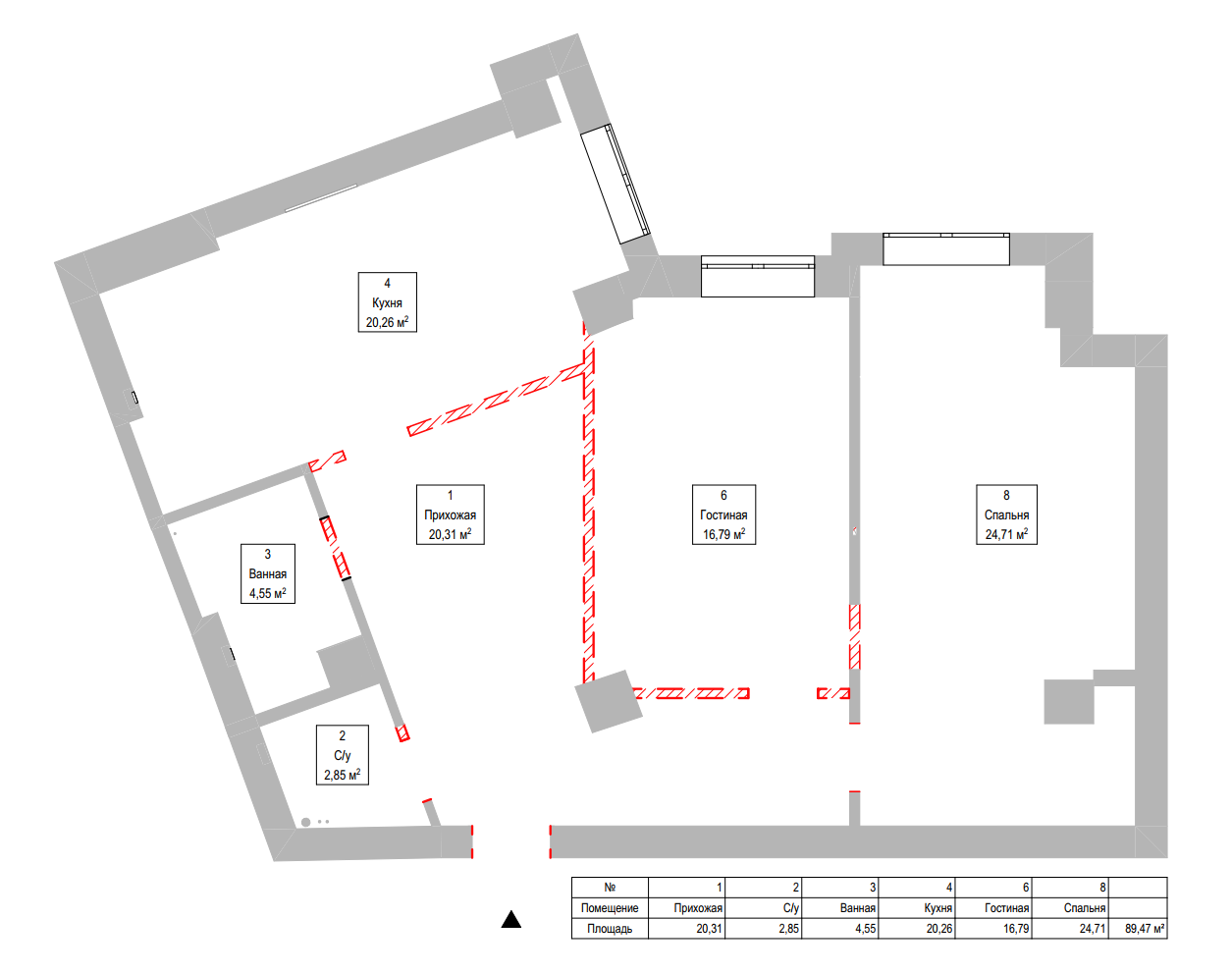
ПЛАНИРОВКА ПРОЕКТА:
Двухкомнатная квартира для жизнерадостной, энергичной женщины,
увлекающейся рукоделием.
Мы получили эту квартиру из рук застройщика и в целом она заказчиков устраивала. Квартира имела 2 изолированные комнаты, но достаточно большую площадь темных коридора и холла, что было большим минусом и мне очень хотелось это поправить.
С заказчицей мы подробно обсудили все возможные жизненные сценарии и пришли к выводу, что в этой квартире нужна одна спальня и иногда хотелось бы изолировать кухню. Поэтому мы объединили холл с гостиной и получили просторное светлое пространство, которое встречает с самого порога. А коридор превратили в хозяйственное помещение и гардеробную при входе.
Вся цветовая палитра построена на основе теплых оттенков для создания уютной обволакивающей атмосферы. Изначально запрос был на максимально светлый интерьер, но по ходу проекта наши эксперименты становились все смелее и это позволило добавить немного контраста в виде прекраснейшего орехового шпона от wood stock и яркие акценты красного и желтого.
Создать цельное пространство в гостиной, учитывая большое количество дверей, мне помог прием маскировки — настенные панели за ТВ задают ритм и скрывают две двери, ведущие в хозяйственный блок и в спальню. Чтобы добиться такого идеального результата, нам пришлось изготавливать и панели, и двери на одном производстве, где рисунок шпона собирался под нашим чутким контролем, учитывая всю композицию.
Еще одна хитрость в формировании этого пространства — зеркало во всю высоту стены. Оно не только увеличивает визуально площадь, но и удваивает естественное освещение, потому что установлено напротив окна.
В гостиной, помимо зоны отдыха расположилась небольшая рабочая зона для рукоделия. Ее мы зонировали перегородкой с рифленым стеклом, которая не препятствует естественному свету, но делит пространство и является декоративным элементом.
В этой квартире мы стремились все общие зоны объединить и поэтому в кухню-столовую мы попадаем из гостиной через большие раздвижные двери, которые выполнены под заказ. Практически всегда эти двери находятся открытыми и выглядят настенными декоративными панелями.
Кухню мы расположили таким образом, чтобы рабочая часть не просматривалась из прихожей и гостиной, а видовой точкой сделали столовую.
Обеденная
группа включает в себя диван, который отлично расположился в нише у окна. Эту
зону мы декорировали латунными тонкими полосами, которые перекликаются с
отделкой встроенных потолочных светильников от CenterSvet.
В этом помещении намеренно не проводили четкую границу между кухонной и обеденной зоной, чтобы не дробить комнату на мелкие части, а сделали плавный переход через ореховую настенную панель и стеклянную витрину. К тому же Шпон ореха связывает интерьер гостиной и кухни-столовой.
Проектируя кухню, подробно оговаривали хранение в каждом шкафу. По максимуму расположили все в нижних базах, навесные повесили только в нише над раковиной, потому что хозяйке так привычнее хранить посуду, хотя я считаю, что удобнее располагать сушку в нижней базе.
Навесной шкаф акцентировали цветом и золотыми ручками. В поддержку им в интерьер идеально вписалась картина Конюховой Катерины «Парамеции Ромбы».
В приватной части квартиры расположились спальня и гардеробная.
За изголовьем шпонированные дубом 3D панели, выполненные под заказ по нашим эскизам. Объем подчеркнули боковой теплой подсветкой — в вечернее время создается очень уютная атмосфера. На стенах декоративная краска, имитирующая замшу.
Основное освещение выполнено с помощью встроенных гипсовых линейных светильников, в которые установили диммируемую ленту, что позволяет очень гибко настраивать свет. В дополнение к основному свету есть еще трековая магнитная линия, переходящая с потолка на стену, и очерчивающая зону для чтения.
В трек закреплены линейные светильники и направленный спот, которому можно легко задать нужную высоту и направление пучка света.
В ванной комнате мы воплощали давнюю мечту заказчицы. Ей очень хотелось иметь угловую ванную. Хотя изначально на этапе планировок мы планировали встраивать прямоугольную модель. Уже на этапе отрисовок визуализаций мы переиграли компоновку и мне нужно было органично вписать угловую чашу. Я решила экран ванны сделать из настенной плитки, нарезав ее на узкие полосы разной ширины (огромное спасибо плиточникам за эту кропотливую работу) и дополнить темным цоколем, чтобы объем стал визуально легче. Результатом остались довольны все.
Во втором санузле нужно было вписать хозяйственное хранение и стиральную машину, поэтому счет был на миллиметры. Удалось удобно все скомпоновать. В высоком шкафу помимо вместительного хранения организован доступ к счетчикам, а в шкафу под раковиной место для стиральной машины. В ходе реализации постирочный блок мы перенесли в отдельное хозяйственное помещение, потому что появилось желание обзавестись сушильной машиной, которая сюда бы комфортно не встала. Но не смотря на перестановки, в этом санузле решили действовать по изначальному плану и количество хранения не уменьшать.
Прихожую мы намерено не стали загромождать шкафами, вся верхняя одежда хранится в гардеробной, а для гостей предусмотрены настенные декоративные крючки.
Высокое зеркало из гостиной заворачивает в прихожую, огибая стену — намеренно выстраивали эту перегородку, чтобы из гостиной не было видно верхней одежды и обуви. Дополнительно предусмотрено навесное зеркало с полочкой для телефона, парфюма и прочей необходимой мелочи.













































